Lučany nad Nisou 804 - Jablonec nad Nisou
Discover the enchanting heart of Central Europe, where Gothic spires pierce ancient skies, cobblestone streets whisper tales of centuries past. The Czech Republic beckons with Prague's majestic castle overlooking the winding Vltava River, while Charles Bridge stands as an eternal testament to baroque artistry. Beyond the capital's splendor lies a tapestry of treasures: fairy-tale Český Krumlov nestled in South Bohemia's embrace, the healing thermal springs of Karlovy Vary, Brno's cultural pulse.
Lučany nad Nisou 804
WiFi
Parking
We speak
CS
8.0/10
Check availability
WiFi
Parking
We speak
CS
8.0/10
Garden
Non-smoking throughout
Private parking
Guests have the option to cancel any cleaning services for their accommodation during their stay
Soundproof rooms
Free WiFi
Heating
Shared stationery such as printed menus, magazines, pens, and paper removed
Terrace
Staff follow all safety protocols as directed by local authorities
Physical distancing rules followed
Cashless payment available
Hand sanitizer in guest accommodation and key areas
WiFi available in all areas
Non-smoking rooms
Parking
WiFi
CCTV in common areas
CCTV outside property
Private check-in/check-out
Free parking
Parking on site
Contactless check-in/check-out
Family rooms
Internet services
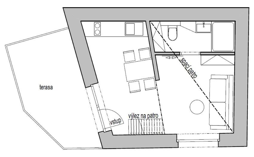
Offering a garden and mountain view, Lučany nad Nisou 804 is located in Jablonec nad Nisou, 25 km from Ještěd and 30 km from Szklarki Waterfall. This property offers access to a terrace, free private parking and free WiFi. Izerska Railway is 33 km away and Dinopark is 34 km from the apartment.
The apartment consists of 1 bedroom, a living room, a fully equipped kitchenette with an oven and a kettle, and 1 bathroom with a walk-in shower and a hair dryer. Towels and bed linen are provided in the apartment. This apartment is non-smoking and soundproof.
Kamienczyka Waterfall is 30 km from the apartment, while Szklarska Poreba Bus Station is 32 km away. Pardubice Airport is 117 km from the property.
The hotel day starts from hour 16:00 and ends at 10:00.
This property will not accommodate hen, stag or similar parties.
Managed by a private host
One-Bedroom Apartment. This apartment comprises 1 living room, 1 separate bedroom and 1 bathroom with a walk-in shower and free toiletries. In the well-fitted kitchenette, guests will find a stovetop, a refrigerator, kitchenware and an oven. The apartment provides soundproof walls, a tea and coffee maker, a wardrobe as well as a terrace with garden views. The unit offers 3 beds.
